Living fam. Arteni
Living fam. Arteni
Proiectul de casă al familiei Pietreanu este unul ieftin de construit. Farmecul său unic se datorează fațadei originale, care combină elegant albul elegant cu griul la modă și lemnul. Formă simplă, acoperiș clasic, cu patru ape și un interior bine amenajat, cu o diviziune clară a zonelor oferă gospodăriei confort zilnic și un consum termic economic.”
Detalii tehnice
Detalii tehnice
Regim de înălțime: parter
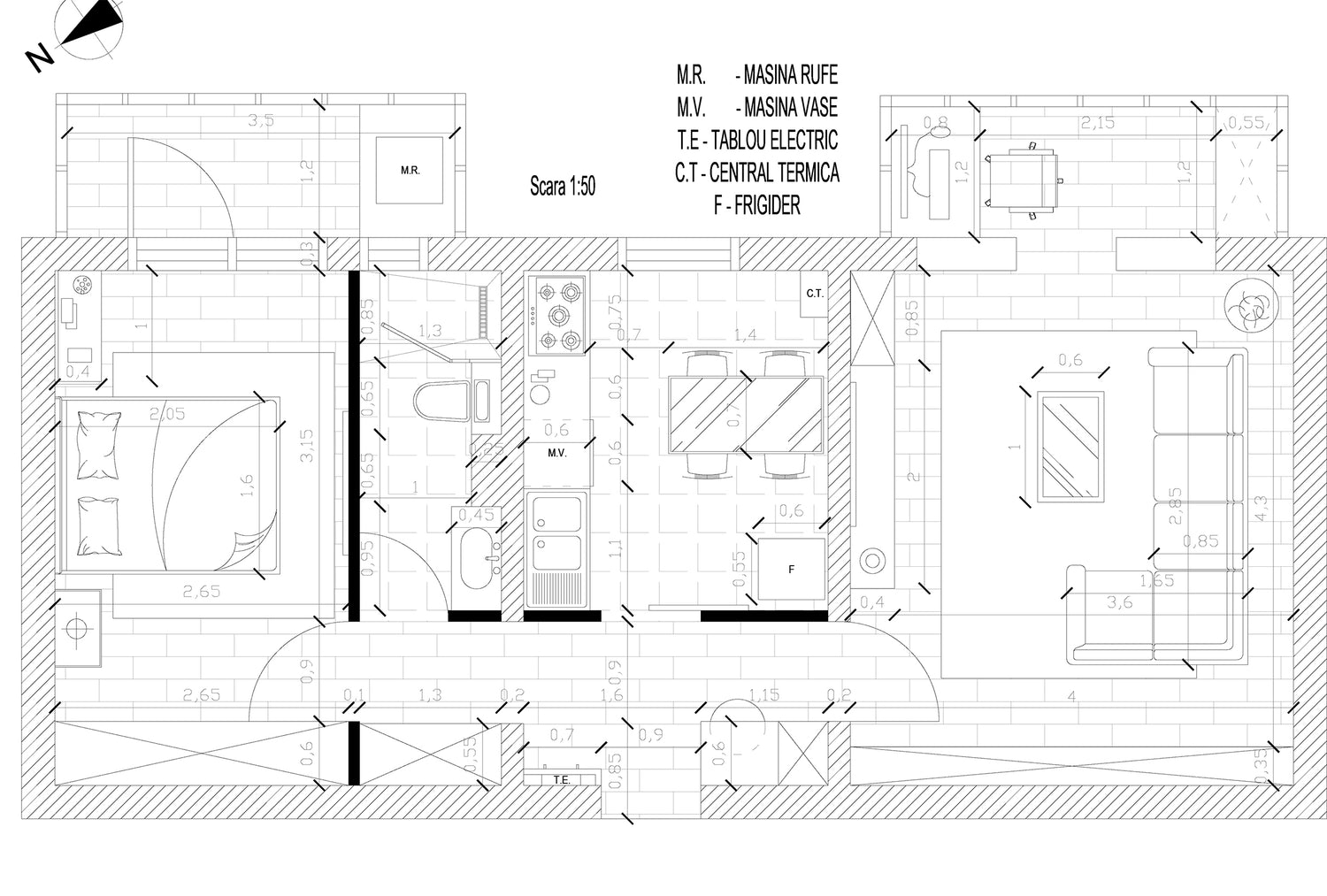
Suprafață locuibilă: 109,88 mp
+ cameră tehnică: 8,47 mp
Suprafață desfășurată: 153,98 mp
Suprafață utilă: 118,35 mp
Volum construit: 384,16 mc
Dimensiunile clădirii: 14,44 m x 11,44 m
Unghiul acoperișului: 25 deg
Suprafața acoperișului: 241,00 mp
Functiuni
Functiuni
1. Vestibul 4,25 mp
2. Hol 4,21 mp
3. Bucătărie 10,24 mp
4. Cămară 2,04 mp
5. Camera de zi 28,30 mp
6. Toaletă 1,97 mp
7. Coridor 8,22 mp
8. Dormitor 15,62 mp
9. Dormitor 13,10 mp
10. Dormitor 13,06 mp
11. Baie 8,87 mp
12. Cameră tehnică 8,47 mp
Informatii suplimentare
Informatii suplimentare
Construcția vizată respectă în totalitate normele în vigoare privind materialele folosite, asigurând un echilibru termic adecvat, izolație acustică și un microclimat sănătos.

Instalatii electrice
Instalațiile electrice reprezintă ansamblul de echipamente și dispozitive utilizate pentru distribuția și utilizarea energiei electrice într-o clădire sau într-un alt tip de infrastructură.
Instalatii termice
Instalațiile termice sunt sistemele utilizate pentru încălzirea, răcirea și ventilarea unui spațiu, asigurând confortul termic în clădiri.